廣州太古匯佳能專賣店設計
面積 :1000平方米 / 地址 :廣州市太古匯一座四樓 / 點擊 :2966
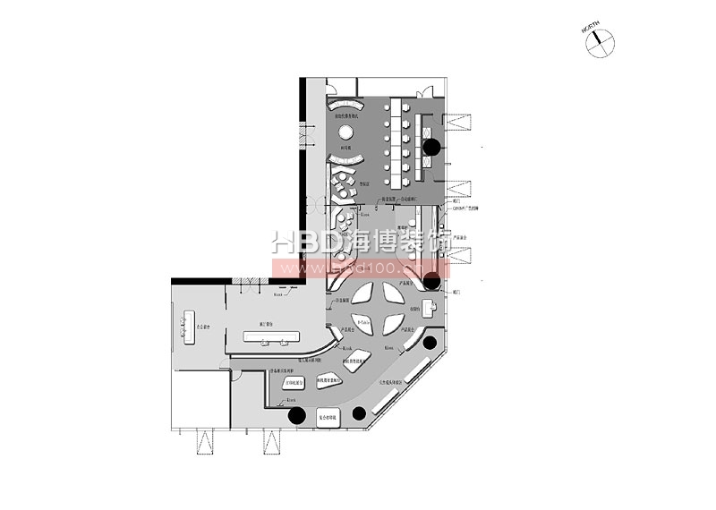
本案佳能廣州太古匯專賣店展廳設計比較重要的是基調展示和空間展示劃分。HBD海博裝飾設計師精心布置的多功能媒體展示廳,放置著演示設備,以幫助品牌形象更好地建立。利用地面折線分割跑道的表現與背景形象的鮮明顏色相互配合產生強烈視覺沖擊效果,令人耳目一新,印象深刻。
開闊的顧客休息洽談區結合墻面產品形象展示,傳達出其功能主題。運用厚重的體量感,如橢圓體及長方體,將所有的空間有機地聯系起來,詮釋著富有建筑語言的獨特空間設計,突出了形體動態。不多的附加裝飾成分,使產品展示和整個空間達到平衡協調。在顏色的選擇上,延續了親切的感覺,行間序列呈開放式,各區之間并非完全獨立,相互之間的展示都能夠呼應。通過其開放式的手法使得空間相互空間更自然融合,交互作用。

廣州太古匯--佳能專賣店設計

廣州太古匯--佳能專賣店設計

廣州太古匯--佳能專賣店設計

廣州太古匯--佳能專賣店設計

廣州太古匯--佳能專賣店設計(鳥瞰圖)

廣州太古匯--佳能專賣店設計(鳥瞰圖)

廣州太古匯--佳能專賣店設計(鳥瞰圖)
- 上一案例:廣州高格調單位臺灣佬鞋店店鋪裝修設計
- 下一案例:展廳設計 杭州愛鯢家園保健品展廳裝修設計
137-1150-4887
在線咨詢
